GIỎ HÀNG
0 sp
$ 0đ
Hotline: 0912 812 359 - 0911 092 569

Trang chủ »
Tin tức

Làm hệ thống bếp với chi phí hợp lý

Hệ thống làm bếp với chi phí hợp lý tùy thuộc vào từng gia đình. Theo quan niệm của mỗi gia đình cũng sẽ có những lựa chọn về kiểu dáng, kích thước, chi phí đầu tư cho gian như thế nào. Nội Thất Miền Nam giới thiệu những gian bếp dưới đây để cho bạn hiểu thêm các cách đầu tư làm không gian bếp với chi phí hợp lý, phù hợp với gia đình bạn

Hướng dẫn thiết kế phòng bếp kiểu dáng hiện đại và tiết kiệm

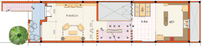
Bạn muốn tạo ra một không gian thoáng và góc nhìn bao quát toàn nhà thì nên để bếp và phòng ăn đặt ở trên lầu
Bạn muốn tạo ra một không gian thoáng và góc nhìn bao quát toàn nhà thì nên để bếp và phòng ăn đặt ở trên lầu
 
Ngôi nhà ở thành phố thường chỉ có kích thước nhỏ, ở đây với chiều ngang 3,5m vừa ở, vừa kinh doanh dưới tầng trệt và tầng lửng do đó chủ nhà phải tách biệt lối vào của gia đình ở phía đằng sau. Đặt cầu thang ở phía cuối ngôi nhà khi đi lên tầng lửng đi tiếp vài bậc sẽ đến bếp ăn ở lầu 1 phía trướng, không đi xuyên qua phần kinh doanh đặt trên tầng lửng của ngôi nhà. Thường thì nhiều gia đình thường đặt bếp và bàn ăn ở tầng trệt nhưng ở đây đặt ở trên lầu vừa thông thoáng lại dễ dàng quan sát toàn bộ ngôi nhà. 
 
Bếp được thiết kế thêm giếng trời tạo ra không gian mở
Bếp được thiết kế thêm giếng trời tạo ra không gian mở
 
Ở lầu 1 có thiết kế giếng trời đặt ở kế bên là bếp, dành hẳn một khoảng sàn phía đằng sau để tạo ra một không gian mở
Với ý tưởng tương tự như đưa bếp lên cao cho thông thoáng  mặc dù ngôi nhà trong hẻm trên đường Nguyễn Thái Sơn (Gò Vấp)không kinh doanh gì dưới tầng trệt nhưng vẫn đặt bếp kế bên giếng trời lầu 1 và dảnh cả 1 khoảng sàn phía đằng sau để tạo không gian mở cho ngôi nhà. 
 
Cho dù là đặt bếp ở vị trí nào thì vẫn cần sự thuận tiện cho người sử dụng. Bếp phải được thiết kế phù hợp với tổng thể ngôi nhà vừa tăng tính thẩm mỹ lại vừa tiện nghi. Nên lược bỏ những chi tiết không phù hợp với nhu cầu sử dụng để tránh tình trạng rườm rà, rối mắt và bất tiện khi sử dụng.
 
Dưới đây mà một số cách sắp xếp gian bếp hợp lý và tiết kiệm được chi phí :

Ton- sur - Ton

Bạn nên thử 1 tông màu cho phòng bếp sẽ tạo ra không gian ngăn nắp, sạch sẽ.
Bạn nên thử 1 tông màu cho phòng bếp sẽ tạo ra không gian ngăn nắp, sạch sẽ.

Thay một bức tranh

Những bức vách có thể treo vật dụng trong nhà bếp vừa tiện lợi lại vừa tiết kiệm chi phí và không gian của căn phòng
 
Những bức vách có thể treo vật dụng trong nhà bếp vừa tiện lợi lại vừa tiết kiệm chi phí và không gian của căn phòng

Lựa chọn kích thước phù hợp 

Lựa chọn bàn ăn phù hợp với kích thước gian bếp
Lựa chọn bàn ăn phù hợp với kích thước gian bếp
 
Nếu căn bếp của bạn có diện tích nhỏ không nên mua những chiếc bàn thật lớn vì nếu khi bạn để những chiếc bàn đó sẽ chiếm rất nhiều diện tích làm bất tiện cho sinh hoạt cho gia đình bạn.

Tận dụng không gian

Tiết kiệm không gian bằng cách sắp xếp bếp phía dưới cầu thang
Tiết kiệm không gian bằng cách sắp xếp bếp phía dưới cầu thang
 
Bạn nên tận dụng không gian trong căn bếp của mình, bạn có thể bố trí một gian bếp nhỏ xinh phía dưới cầu thang như này. Có thể thiếu một chút ánh sáng nhưng sẽ làm cho căn phòng trở nên rộng rãi hơn. 
 
Bạn muốn thiết kế một căn bếp với chi phí hợp lý hãy liên hệ ngay với chúng tôi qua :
  • Truy cập website :https://noithathoaphat3.com/
  • Hotline : 0911 092 569 - 0911 666 359 - 0912 812 359
  • Email : banhang116@gmail.com
Với đội ngũ nhân viên nhiều năm kinh nghiệm trong lĩnh vực nội thất chắc chắn sẽ đem đến cho bạn sự hài lòng 

Sản phẩm khuyến mãi

Ghế gấp Hòa Phát G10 -6%

Ghế gấp Hòa Phát G10

300.000đ 319.000đ
Ghế Bàn Hội Thảo G04BM -3%

Ghế Bàn Hội Thảo G04BM

580.000đ 597.000đ
Bàn chân sắt giá rẻ MNR102 -8%

Bàn chân sắt giá rẻ MNR102

780.000đ 840.000đ

ĐỐI TÁC & DỰ ÁN

Tròn 12 năm xuất hiện trên thị trường nội thất, Nội Thất Miền Nam không chỉ gây dựng uy tín dựa vào sự lỗ nực của bản thân mà còn nhờ luôn hợp tác với những đối tác có thương hiệu nổi bật, uy tín và chất lượng cao cấp. Chúng tôi rất coi trọng việc chọn lựa đối tác để mang lại sản phẩm và dịch vụ chất lượng vượt trội, công nghệ tiên tiến, tiện ích sử dụng cùng chế độ bảo hành tốt nhất. Chúng tôi và đối tác của chúng tôi luôn mong muốn tạo ra những sản phẩm dự án tốt nhất trong lĩnh vực nội thất

Trong hơn 20 năm hình thành và phát triển, Nội Thất Hòa Phát đã đi sâu vào lòng khách hàng bởi thương hiệu uy tín và chất lượng cao cấp. Với các dòng sản phẩm đa dạng về chủng loại, mẫu mã, từ trung cấp đến cao cấp, từ đơn giản đến tinh tế thì công ty Hòa Phát chính là sự lựa chọn số 1 về mảng nội thất hiện nay. Các dòng sản phẩm chính của Nội Thất Hòa Phát như: bàn ghế văn phòng, tủ tài liệu, két sắt chống cháy, bàn ghế trường học, nội thất bệnh viện, ghế hội trường, nội thất công cộng... Mỗi dòng sản phẩm của Hòa Phát không chỉ mang đến giá trị về vật chất cho người sử dụng mà còn mang giá trị tinh thần về sự tin tưởng – an toàn – thoải mái khi sử dụng sản phẩm của công ty. Cùng với các thương hiệu nổi tiếng khác như Fami, 190 thì bàn ghế Hòa Phát là một trong những thương hiệu uy tín nhất trên thị trường nội thất văn phòng, gia đình, trường học, bệnh viện.
 
Nội thất Miền Nam tự hào là nhà phân phối chính hãng của công ty Hòa Phát tại các quận huyện trong thành phố Hồ Chí Minh như Quận 1, Quận 12, Quận Thủ Đức, Quận 9, Quận Gò Vấp, Quận Bình Thạnh, Quận Tân Bình, Quận Tân Phú, Quận Phú Nhuận, Quận 2, Quận 3, Quận 10, Quận 11, Quận 4, Quận 5, Quận 6, Quận 8, Quận Bình Tân, Quận 7, Huyện Củ Chi, Huyện Hóc Môn, Huyện Bình Chánh, Huyện Nhà Bè, Huyện Cần Giờ. Không chỉ cung cấp tại Sài Gòn, công ty Miền Nam còn phân phối sản phẩm Hòa Phát tại các tỉnh như An Giang, Bà Rịa Vũng Tàu, Bạc Liêu, Bến Tre, Bình Dương, Bình Định, Bình Phước, Bình Thuận, Cà Mau, Cần Thơ, Đắk Lắk, Đăk Nông, Đồng Nai, Đồng Tháp, Gia Lai, Hậu Giang, Khánh Hòa, Kon Tum, Lâm Đồng, Long An, Ninh Thuận, Phú Yên, Sóc Trăng, Tây Ninh, Tiền Giang, Kiên Giang, Trà Vinh, Vĩnh Long… Khi đến với Nội Thất Miền Nam ngoài việc có thể lựa chọn các mẫu sản phẩm đa dạng và phong phú của Hòa Phát thì chúng tôi còn nhận lắp đặt, thiết kế các mẫu sản phẩm theo yêu cầu của quý khách. Công ty Miền Nam luôn luôn không ngừng nỗ lực nâng cao chất lượng sản phẩm và dịch vụ tốt nhất để mang tới sự hài lòng dành cho khách hàng. Mua các sản phẩm từ Nội Thất Hòa Phát tại khu vực phía Nam chỉ có tại đại lý nội thất Miền Nam là nhiều ưu đãi và giá rẻ nhất!!! Liên hệ ngay để được tư vấn miễn phí và báo giá tốt nhất.